Phoenix NEO

Rolling Filter Conveyor SAL

Double-conveyor-type punching filter conveyor.
Reduces the tank cleaning frequency.
Optimum for cutting chip processing of non-magnetic materials.

Features

Coolant

Water soluble Oli-based

Category

Non-magnetic material

Processing Details

Cutting

Work Material

Aluminum Stainless Copper Titanium Magnesium Mixed chips (aluminum + FC or sintered metal)

Chip Shape

Granular Small curl-shaped (50 mm or less) Small curl-shaped (51 mm to 100 mm)

Grinding Chip Size

Machine Tool

Machining center Cutting specialized machine Gun drill machine

Mechanism

PXK Sludge Distribution
PXH Sludge Distribution
  1. The dirty liquid flows into the punching filter conveyor (AL).
  2. Chips captured in the punching filter are scraped off by the scraping board and settle on the bottom of the conveyor.Then, they are discharged by the scraper.
  3. The clean liquid that is primarily filtered by the punching filter conveyor flows into the scraper conveyor.
  4. Fine chips that have passed through the punching filter conveyor settle on the bottom of the conveyor, and are discharged to the outside of the main body.
  5. The clean liquid that is secondarily filtered by the scraper filter conveyor is sent to the pump tank, and supplied to the machine.
  6. Chips are temporarily stored in the conveyor outlet, drained, and then discharged.

Specifications

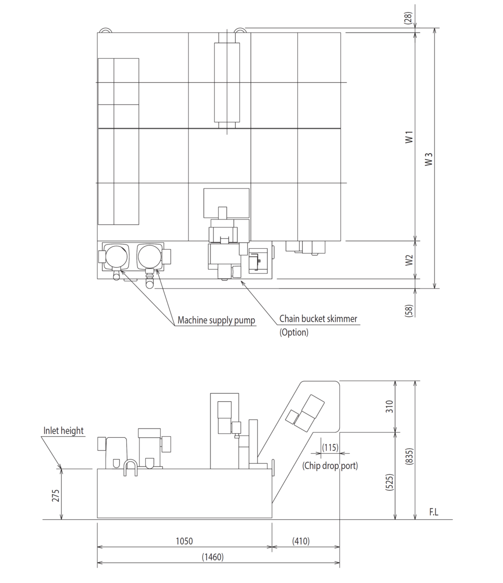
Dimensional drawing

PXK Sludge Distribution

Dimension table

PXH Sludge Distribution

Filtration accuracy

200μm 90% or more

* The filtration accuracy is based on the results of our experiments, and does not imply that this level of accuracy is guaranteed.

Sludge distribution status

Machine tool: Machining center
Coolant: Water soluble
Processing flow rate: 700 L/min
Chip material: Aluminum

PXH Sludge Distribution

Processing flow rate

Water soluble

Product weight

Water soluble

* The product weight varies depending on the specifications, options, etc.

Paint color

Silver gray (Munsell No. N-8.0)

* For information about the specified color, please consult us.

Geared motor

40W

Chip discharge image

PXK Sludge Distribution

* Photos are product images for illustration purposes only. Specifications differ from the actual product.


* The filtration accuracy is based on the results of our experiments, and does not imply that this level of accuracy is guaranteed.
* The specifications and dimensions are subject to change without notice.
* For the oil-based specifications, please consult us.
* For information about custom products other than standard products, please consult us.